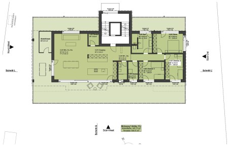
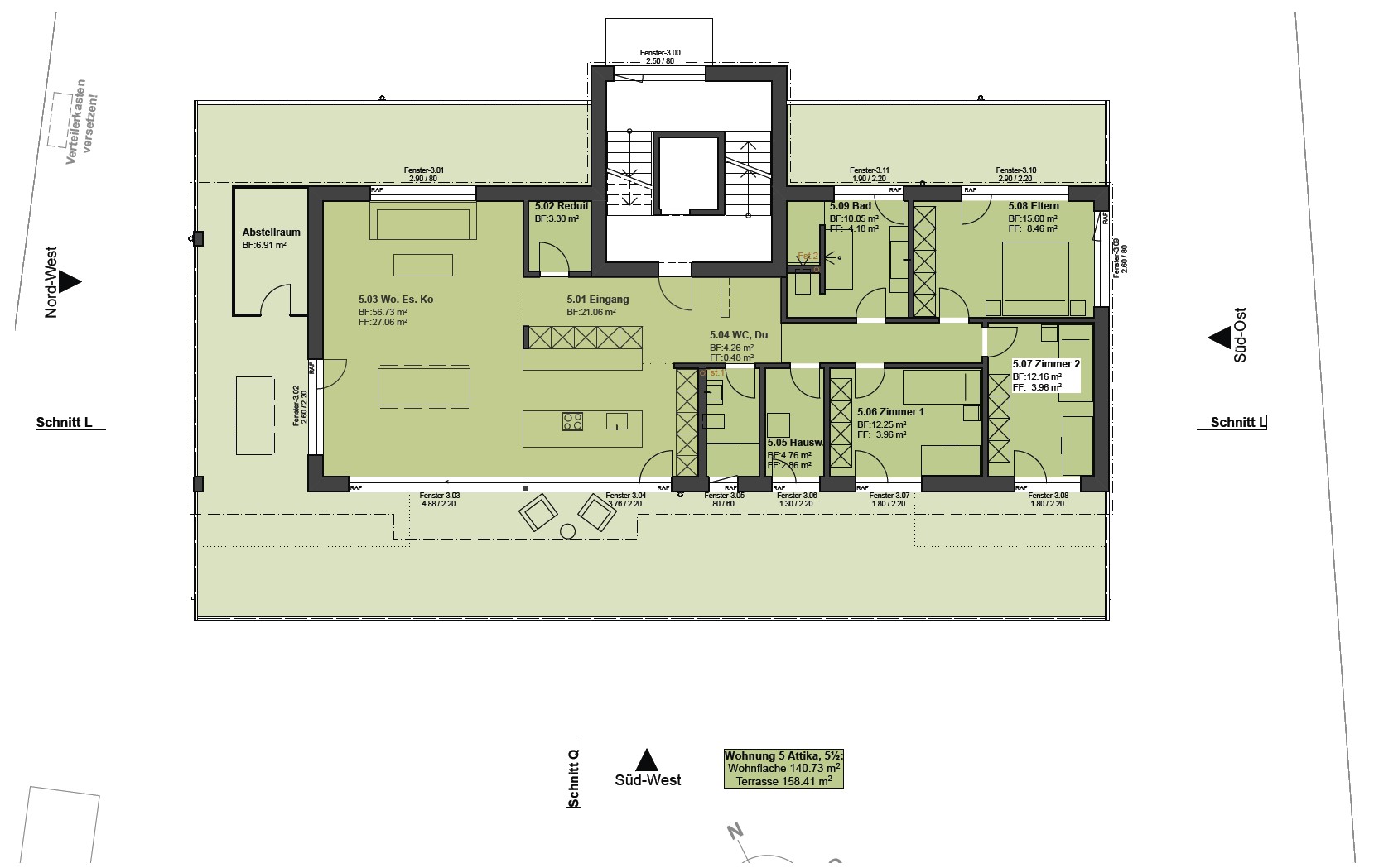
Dachgeschoss:
Attikawohnung, 4 1/2 Zimmer, 140 m2 Wohnfläche, 150 m2 Terrasse

Link zum Detailplan: 87 Attika
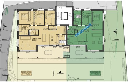
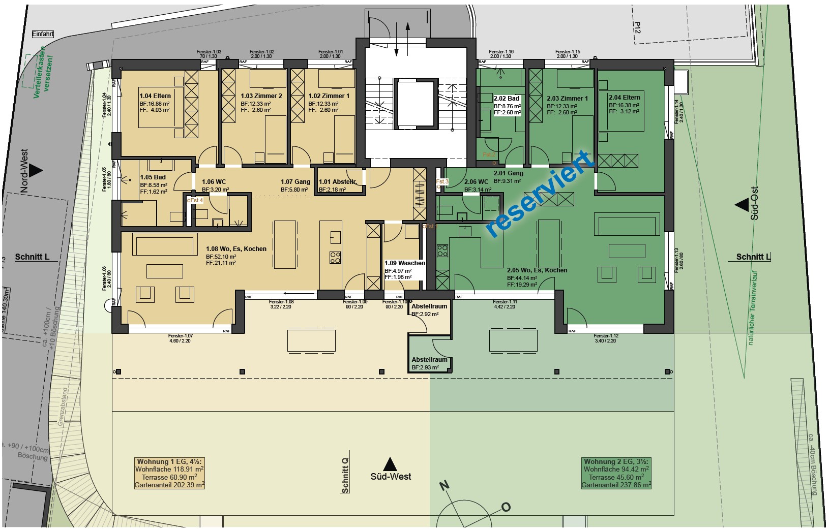
Obergeschoss:
4 1/2 Zimmer-Wohnung (rot), 119 m2 Wohnfläche, 40 m2 Terrasse,
3 1/2 Zimmer-Wohnung (grün), 95 m2 Wohnfläche, 30 m2 Terrasse

Link zum Detailplan: 86 Obergeschoss
Erdgeschoss:
4 1/2 Zimmer-Wohnung (oliv), 119 m2 Wohnfläche, 61 m2 Terrasse, Gartenanteil 60 m2
3 1/2 Zimmer-Wohnung (dunkelgrün), 95 m2 Wohnfläche, 46 m2 Terrasse, Gartenanteil 45 m2

Link zum Detailplan: 91 Erdgeschoss
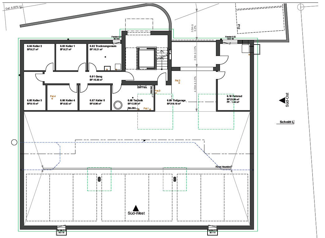
Untergeschoss:
9 Tiefgaragenplätze, Abstellraum Zweiräder, 5 Kellerräume, Trockenraum, Technikraum
Aussenbereich:
3 private Parkplätze
2 öffentliche Besucherparkplätze
Allgemeinfläche
